
北角柏蔚山单位间隔多元化,实用面积519至1537方呎,1房至4房间隔,其中3房户占逾半数。
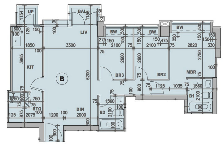
是次参考第2座2至25楼B室图则,单位为3房1套连储物间套厕的间隔,实用面积823方呎,全屋窗台面积为33方呎。
单位特色为厅房分明,房间归一,厨、厅及房同座向,拥相同景观;惟全屋浴室皆没有窗户,而要采用抽气系统。
推门入屋,经过玄关,即为长方形客饭厅,采用玻璃幕墙,并连接23方呎露台,有助引入自然光且提升透光度。
客厅左侧为长方形厨房,内连16方呎工作平台,有利空气流通。厨房门后侧为储藏室套房。
大厅右侧为寝区,由走廊串连起,两间睡房面积相若,公共浴室设备齐全,浴室亦装设浴缸。
至于主人套房设于走廊尽头,房间设走廊位,睡房间隔方正,易于放置家具,而主人浴室亦配备浴缸。







